Are you looking to renovate your kitchen but don’t know where to start? Finding the right kitchen cabinet template can be a game-changer in your renovation project. With printable kitchen cabinet templates, you can visualize your design ideas and make informed decisions.
Whether you are a DIY enthusiast or working with a professional designer, having access to printable kitchen cabinet templates can save you time and money. These templates allow you to experiment with different layouts, styles, and sizes before committing to a final design.
printable kitchen cabinet templates
Explore a Variety of Printable Kitchen Cabinet Templates
From traditional to modern designs, there is a wide range of printable kitchen cabinet templates available online. You can choose from different styles, colors, and configurations to find the perfect match for your space. These templates are easy to customize and can be scaled to fit your kitchen dimensions.
With printable kitchen cabinet templates, you can see how different cabinet styles will look in your space without the need for expensive software or tools. You can experiment with various options until you find the perfect design that suits your taste and budget.
Take the guesswork out of your kitchen renovation project with printable kitchen cabinet templates. Whether you are planning a complete overhaul or just updating your cabinets, these templates can help you visualize the end result and make confident decisions. Start exploring your options today and turn your dream kitchen into a reality!
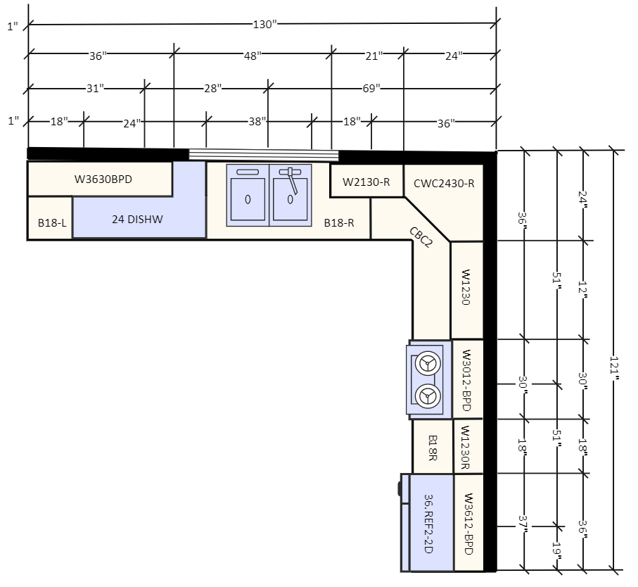
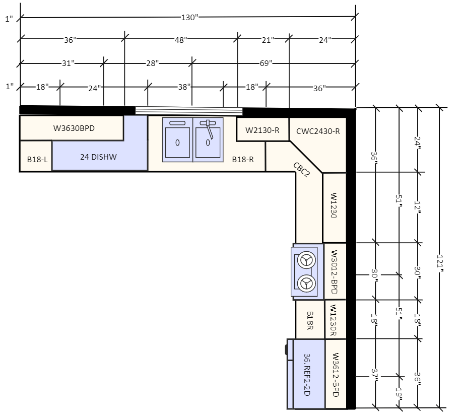
Free Editable Kitchen Floor Plan Examples U0026 Templates EdrawMax
Free Editable Kitchen Floor Plan Examples U0026 Templates EdrawMax
Adding a free printable design boosts organization and creativity when it comes to creating unique handmade gifts. A go-to choice for boosting event planning ease. Because they’re adaptable, they’re perfect for small or large events. Whether used for a quick creative refresh, a instant download printable turns blank paper into something functional. One printable at a time, you can transform your space or event.
Free Editable Kitchen Layouts EdrawMax Online
Free Editable Kitchen Floor Plan Examples U0026 Templates EdrawMax
Kitchen Cabinet Drawing Design Grid U0026 PDF Factory Plaza
Working with a fun word puzzle encourages creative thinking when it comes to supporting brain training. An engaging way to improve spelling accuracy. Being ready-to-print, you can adapt them for different skill levels. Whether shared as holiday activities, a educational crossword puzzle encourages independent problem-solving with fun challenges. These small puzzles can lead to big mental gains.





